At-Risk Youth Accommodation

2023

Reservoir, VIC

Company: Modscape

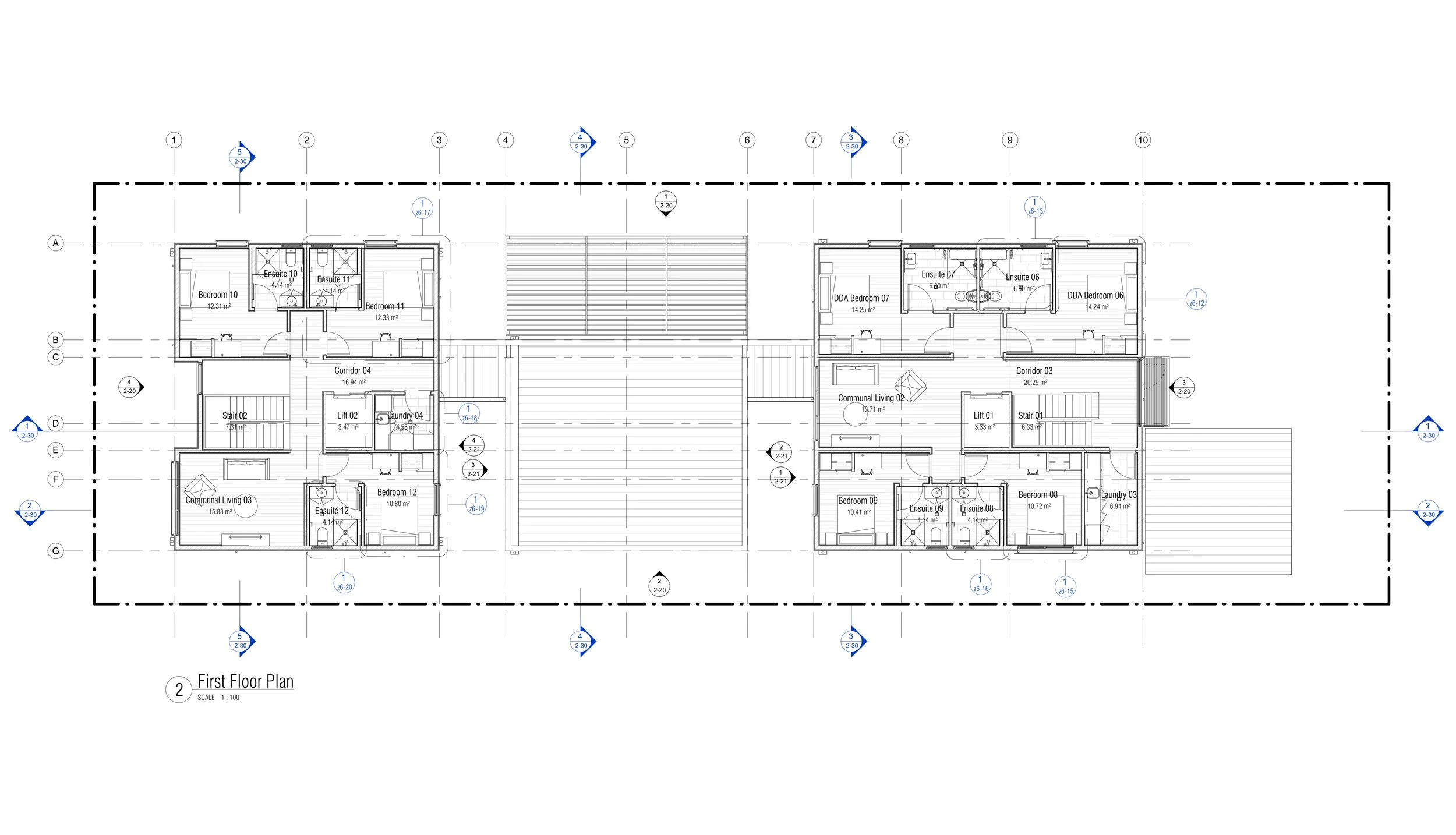
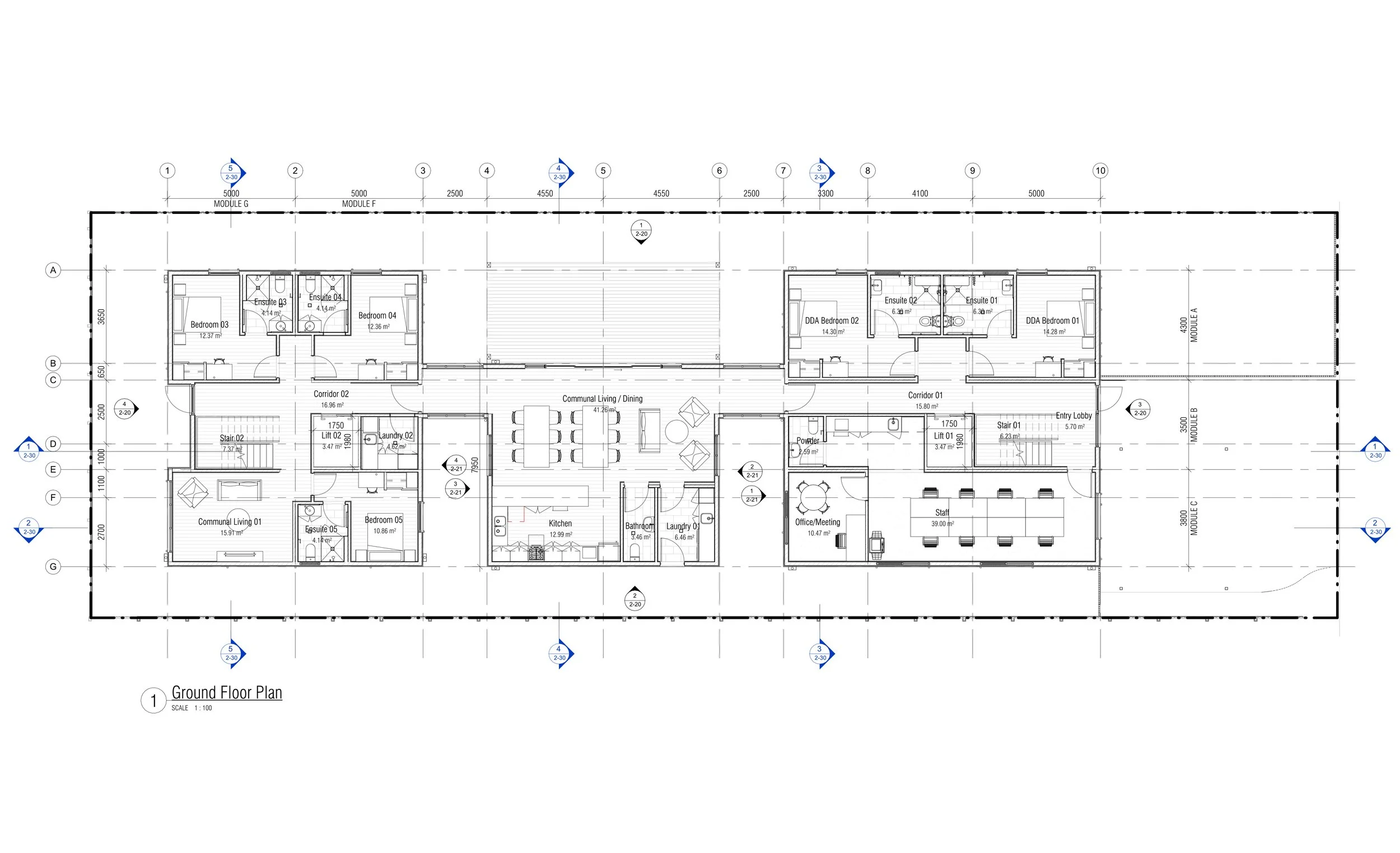
A brand new residential facility providing an expanded housing setting for at-risk and disabled youth in Melbourne. Consisting of 12 bedrooms and varrying communal spaces, this design seeks to maximise the use of the site while also providing desinct spaces for the residents. The exterior design gives a fresh modern look while still being cohesive with the surrounding residential context. My key role on this project involved extensive consultation with the client group as I assisted them through an unfamiliar process and ensured all design opportunities were explored.