Display Suite

2022

Melbourne, VIC

Company: Modscape

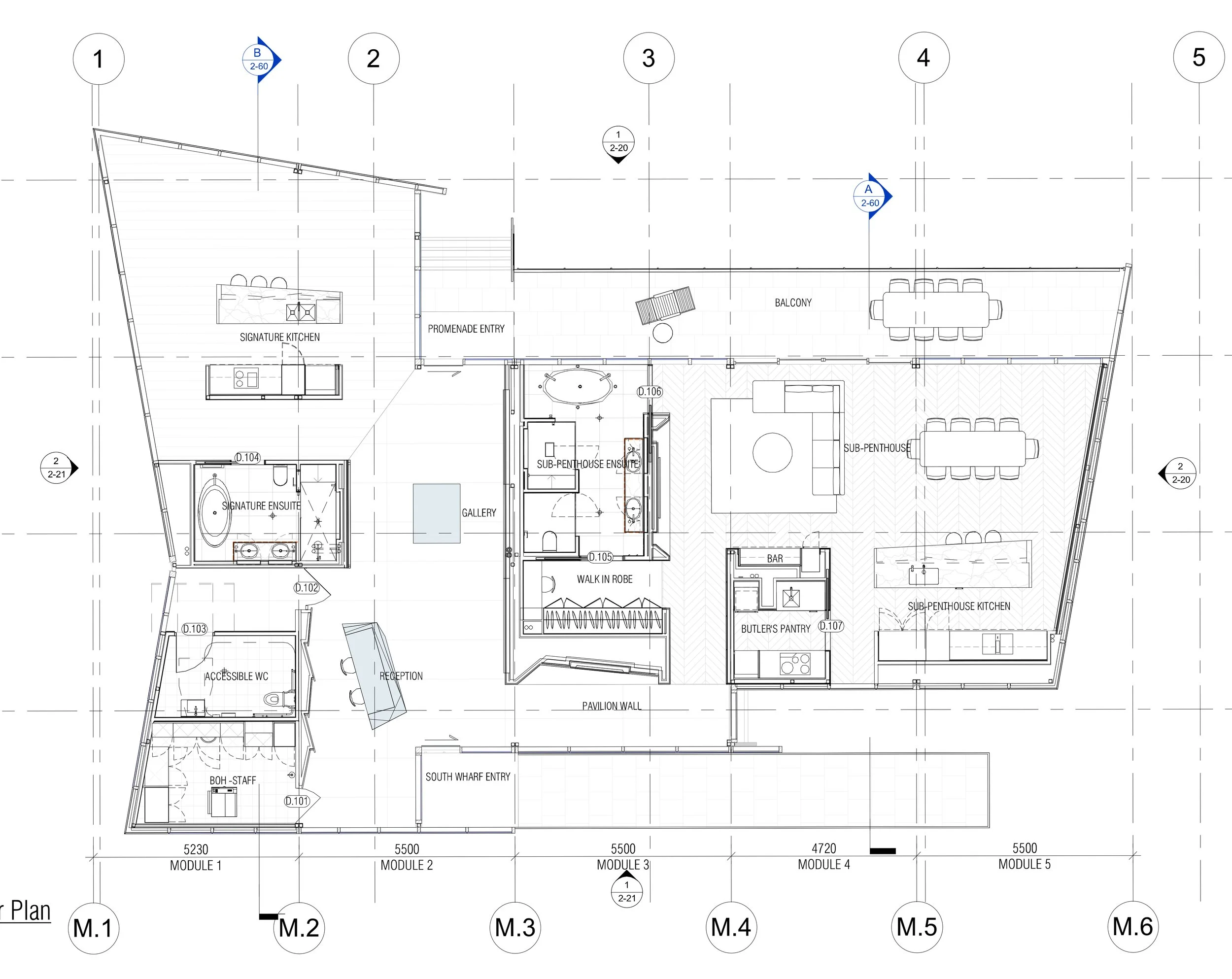
This was a project to produce and install a display suite for a proposed tower in Southbank. I worked closely with an external team of architects and interior designers to convert their designs to suit modular construction. This involved extensive facade detailing to adapt a curtain glazing design to fit the limitations of modular construction while maintaining the desired aesthetic. My involvement encompassed construction detailing as well as general coordination of all services.