Cellar Door

2023

Orange, NSW

Company: Modscape

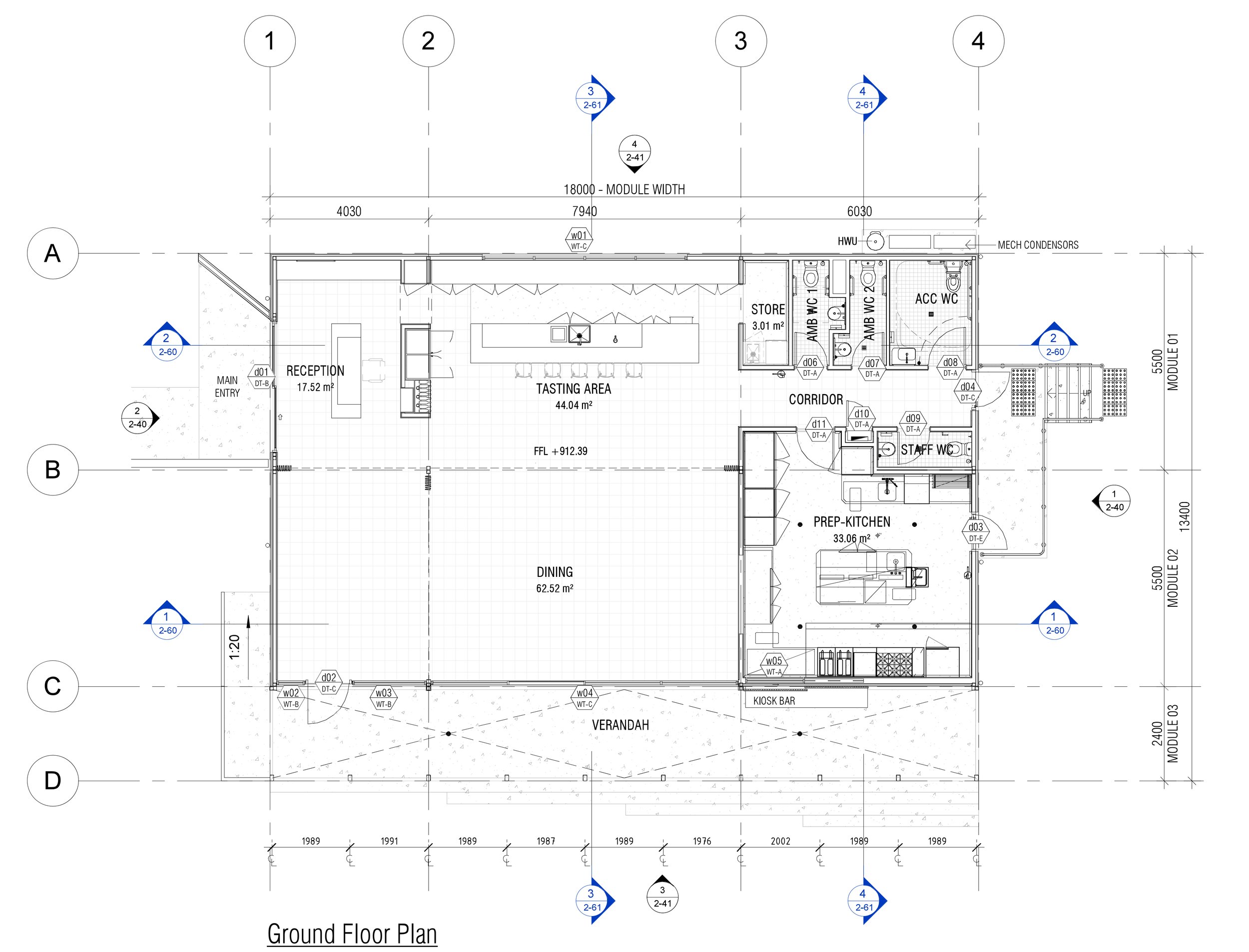
A new cellar door building for this boutique winery in the Orange region of NSW. I developed this project from initial concept in consultation with some advising external architects. On this project I worked through Town Planning, design development and construction documentation. I worked with the construction team during the build process, advising on suitable alternatives, build strategies and reviewing shop drawings. The design seeks to open a modern and inviting space, with flexible use and strong connection to its surrounding landscape.